ESADS en Red | Escuelas Superiores de Arte Dramático en Red

Educació convoca el concurs d’idees per al nou Districte de les Arts. Persones o despatxos d’arquitectes tenen un mes pe…

Educació convoca el concurs d’idees per al nou Districte de les Arts. Persones o despatxos d’arquitectes tenen un mes pe…
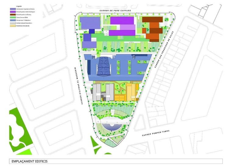
Educació convoca el concurs d’idees per al nou Districte de les Arts.
Persones o despatxos d’arquitectes tenen un mes per presentar-se.

Inclourà:
• el Conservatori Superior,
• l’ESADIB
• i l’Escola de Disseny.

Inversió prevista: 70 milions d’euros.

Scroll al inicio